設計說明:
這個案子最開始業主找到我們的時候,女主人是懷孕的狀態,當時確認了平面方案整個項目就暫時按下了暫停鍵,時隔一年,業主還是找到了我們,并且非常認可我們的公司和設計,整個過非常的愉快,男女業主都是對生活和對設計都是很有追求的人,在交流的時候會給人一種很有親和力的感覺,很有涵養,夫妻二人很恩愛,家中還有個很可愛的小朋友,從第一次接觸就提到過裝修風格,喜歡現代風格,對設計的要求較高,不需要太多太復雜的造型裝飾,希望家中多一些藝術沉淀,崇尚溫暖,干凈,大氣,通透的感覺,所以本案運用的大量的石材,木飾面,作為點睛之筆,點亮整個空間,顏色恰到好處的運用,讓整個空間靈動不呆板,本案這次是主題是Chocolate與你,是因為業主二人給我們的感覺就是非常幸福和恩愛,被譽為“眾神的飲料”的Chocolate,蘊藏著豐富的能量、營養,與令人無法考慮的甜美。都說生活就像巧克力,而Choc與你,都是生活甜美的源泉。整個案子也是圍繞著這個主題去打造的。
項目地址:香山美墅
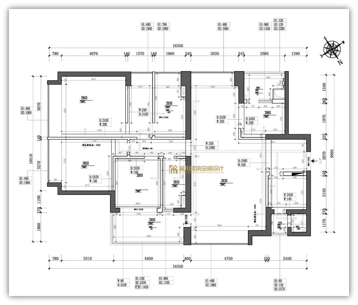
戶型: 四室及以上
裝修風格: 現代簡約
項目面積: 177㎡
設計費:¥106200
施工費:¥318600














0755-83333299
莫川裝飾集團總部 :南山區華潤前海大廈A座23層
深圳福田設計院 :福田區卓越世紀中心4號樓506-507室
莫川蛇口設計院 :南山區蛇口招商局廣場24樓EF
深圳龍華設計院 :龍華區安宏基天曜廣場1棟A座12層E
深圳深灣設計院 :南山區后海片區卓越后海中心2509-2510
深圳寶安設計院 :深圳市寶安區前海科興科學園1棟806
莫川香港設計院 :香港中環皇后大道中16-18號新世界大廈14層
莫川主材定制展廳:南山區高新北二道16號清溢光電大廈4樓
Copyright@ 2015-2017 深圳市莫川建筑空間設計有限公司 版權所有 網站地圖 粵ICP備17082150號 粵公網安備 44030402000770號