業主信息:
業主從事電商行業,兩個男寶寶,第二次裝修新房,有自己的裝修經驗,第一套是已裝修好直接入住的,有些功能不那么好用,想更省心,希望房子不要太冰冷,有生活氣息。
設計亮點:
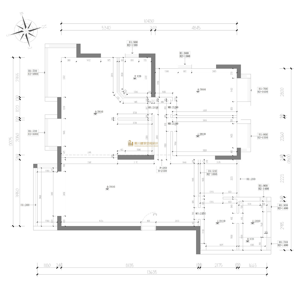
將公衛,廚房,及生活陽臺全部拆掉,重新規劃空間。原衛生間一份為二,大部分納入廚房空間,小部分成為獨立的雜物間,放小朋友的玩具車和家里的大型閑置物品。生活陽臺和餐廳連成一體,陽臺水管包起來,靠墻設計西廚位置,解決冰箱及高柜,還有水管問題,同時多出一排輕食操作臺面。
項目地址:嘉多利花園
戶型: 四室及以上
裝修風格: 現代簡約
項目面積: 132㎡
設計費:¥52800
施工費:¥237600













0755-83333299
莫川裝飾集團總部 :南山區華潤前海大廈A座23層
深圳福田設計院 :福田區卓越世紀中心4號樓506-507室
莫川蛇口設計院 :南山區蛇口招商局廣場24樓EF
深圳龍華設計院 :龍華區安宏基天曜廣場1棟A座12層E
深圳深灣設計院 :南山區后海片區卓越后海中心2509-2510
深圳寶安設計院 :深圳市寶安區前??婆d科學園1棟806
莫川香港設計院 :香港中環皇后大道中16-18號新世界大廈14層
莫川主材定制展廳:南山區高新北二道16號清溢光電大廈4樓
Copyright@ 2015-2017 深圳市莫川建筑空間設計有限公司 版權所有 網站地圖 粵ICP備17082150號 粵公網安備 44030402000770號