設計亮點:
客廳電視背景結合過道做了造型延伸,增加客廳延伸感,解決客餐廳比例失衡問題
通過硬裝線條與櫃體骨骼線營造出法式溫馨氛圍感
項目地址:香港新界沙田區火炭坳背灣街1號
戶型: 四室及以上
裝修風格: 法式
項目面積: 84㎡
設計費:¥70000
施工費:¥
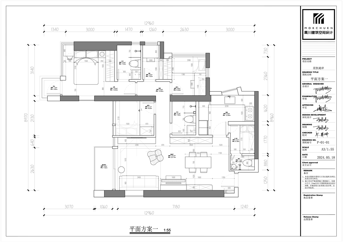
平面圖
效果圖




0755-83333299
莫川裝飾集團總部 :南山區華潤前海大廈A座23層
深圳福田設計院 :福田區卓越世紀中心4號樓506-507室
莫川蛇口設計院 :南山區蛇口招商局廣場24樓EF
深圳龍華設計院 :龍華區安宏基天曜廣場1棟A座12層E
深圳深灣設計院 :南山區后海片區卓越后海中心2509-2510
深圳寶安設計院 :深圳市寶安區前海科興科學園1棟806
莫川香港設計院 :香港中環皇后大道中16-18號新世界大廈14層
莫川主材定制展廳:南山區高新北二道16號清溢光電大廈4樓
Copyright@ 2015-2017 深圳市莫川建筑空間設計有限公司 版權所有 網站地圖 粵ICP備17082150號 粵公網安備 44030402000770號