
項目地址:廣東省深圳市觀瀾新區
戶型: 商業工裝
裝修風格: 其他
項目面積: 134㎡
設計費:¥32000
施工費:¥201000
1. 基本信息
項目地址:廣東省深圳市觀瀾新區
戶型: 商鋪
裝修風格:工業風格
項目面積:134平
2. 預 算
設計費:¥32000
施工費:¥201000(半包)
3. 設計說明
利用層高以及各空間的不同屬性,用體塊穿插的方法盤活整個空間,達到靈活,立體,不枯燥的效果。
4. 設計亮點
采光通風差。
(解決方法:改造立面擴大采光面)
[原始結構圖]
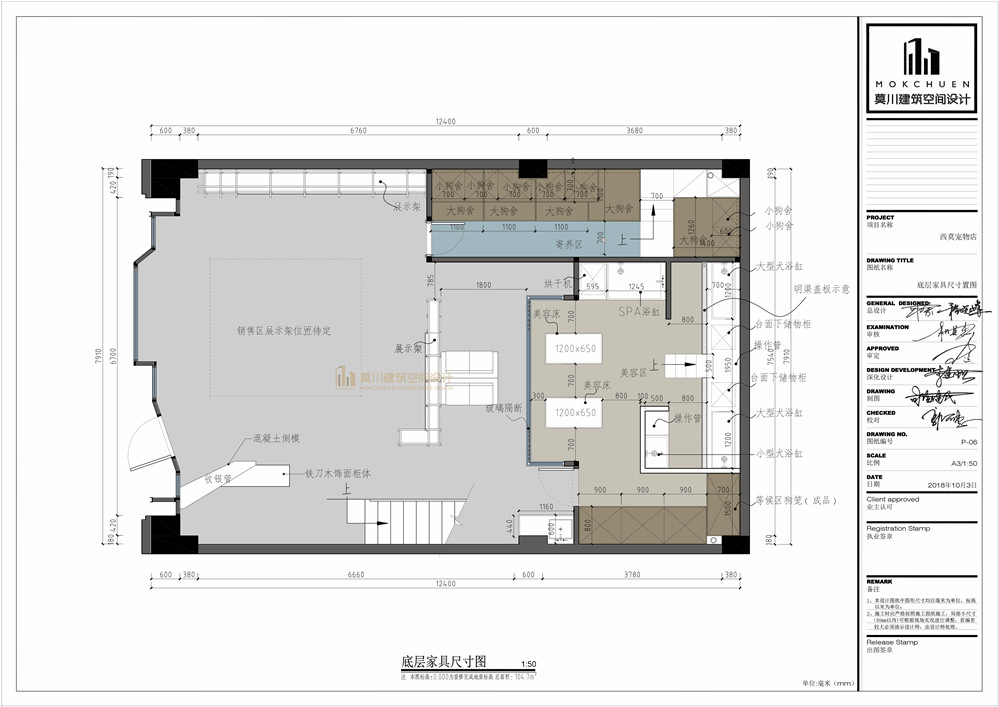
[平面布置圖1層]

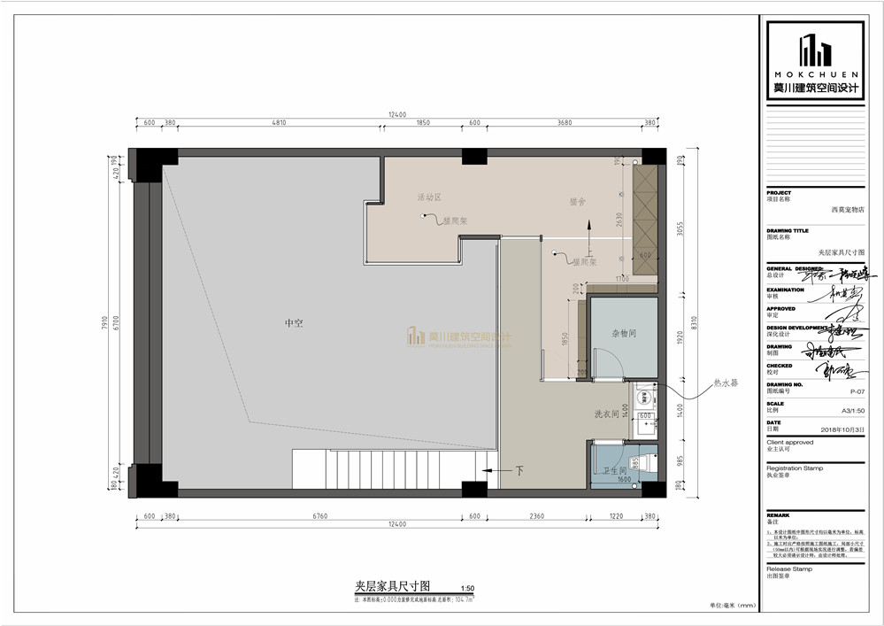
[平面布置圖2層]

5. 區域空間



0755-83333299
莫川裝飾集團總部 :南山區華潤前海大廈A座23層
深圳福田設計院 :福田區卓越世紀中心4號樓506-507室
莫川蛇口設計院 :南山區蛇口招商局廣場24樓EF
深圳龍華設計院 :龍華區安宏基天曜廣場1棟A座12層E
深圳深灣設計院 :南山區后海片區卓越后海中心2509-2510
深圳寶安設計院 :深圳市寶安區前海科興科學園1棟806
莫川香港設計院 :香港中環皇后大道中16-18號新世界大廈14層
莫川主材定制展廳:南山區高新北二道16號清溢光電大廈4樓
Copyright@ 2015-2017 深圳市莫川建筑空間設計有限公司 版權所有 網站地圖 粵ICP備17082150號 粵公網安備 44030402000770號