
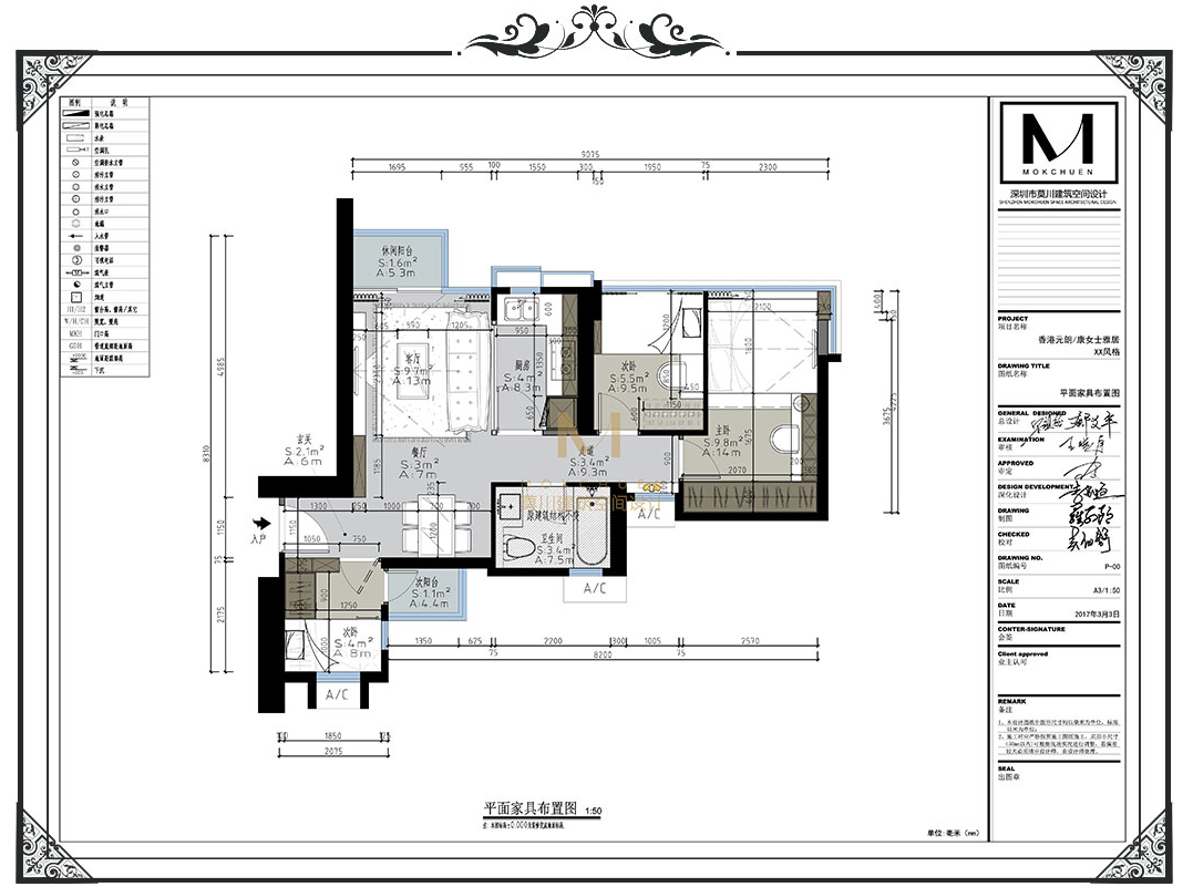
項目地址:香港元朗
戶型: 三室
裝修風格: 北歐風格
項目面積: 45㎡
設計費:¥13500
施工費:¥198000

45平米三室兩廳,麻雀雖小也需五臟俱全,空間不夠品味要夠。帶著些許歐式小線條的墻面,讓一進門正對著的餐廳也顯得不那么突兀,更像是歐洲街道轉角的小甜點店露出甜美的氣息。
大塊雪花白電視背景墻跟卡其灰色墻面形成層疊關系,側面凹槽藏上燈帶,層次更加豐富,因為有了鏤空和燈光,用于儲物的壁柜也不顯得擁擠死板。與廚房相鄰的墻被我們用大塊透明玻璃取代,露出漂亮簡潔的廚房,從視覺上擴寬了客廳空間,整個公共區域更加通透明亮。


臥室的床借用了窗臺的面積,做成床下抽屜床上吊柜的BOX,大大提升了儲物空間,為業主營造了安全感滿分的就寢空間,顏色上依然是卡其灰和白的的搭配,但在面料上選擇了織紋的墻布,讓臥室更加柔和,溫暖。


0755-83333299
莫川裝飾集團總部 :南山區華潤前海大廈A座23層
深圳福田設計院 :福田區卓越世紀中心4號樓506-507室
莫川蛇口設計院 :南山區蛇口招商局廣場24樓EF
深圳龍華設計院 :龍華區安宏基天曜廣場1棟A座12層E
深圳深灣設計院 :南山區后海片區卓越后海中心2509-2510
深圳寶安設計院 :深圳市寶安區前??婆d科學園1棟806
莫川香港設計院 :香港中環皇后大道中16-18號新世界大廈14層
莫川主材定制展廳:南山區高新北二道16號清溢光電大廈4樓
Copyright@ 2015-2017 深圳市莫川建筑空間設計有限公司 版權所有 網站地圖 粵ICP備17082150號 粵公網安備 44030402000770號