
項目地址:南山區卓越前海壹號
戶型: 別墅會所
裝修風格: 現代簡約
項目面積: 470㎡
設計費:¥470000
施工費:¥8000000
1. 基本信息
項目地址:廣東省深圳市南山區
戶型: 頂層公寓
裝修風格:現代風格
項目面積:470平
2. 預 算
設計費:¥470000
施工費:¥8000000(全包)
3. 設計說明
鉆石在天然礦物中的硬度最高,其脆性也相當高,用力碰撞就會碎裂。
源于古希臘語Adamant,意思是堅硬不可侵犯的物質,是公認的寶石之王。
也就是說,鉆石其實是一種密度相當高的碳結晶體。
也是我們的設計靈感來源,取自于鉆石的自然,極簡, 奢華珍貴的獨特性,
將鉆石天然截面的勾勒得完美線條運用于設計之中。
[原始結構圖]

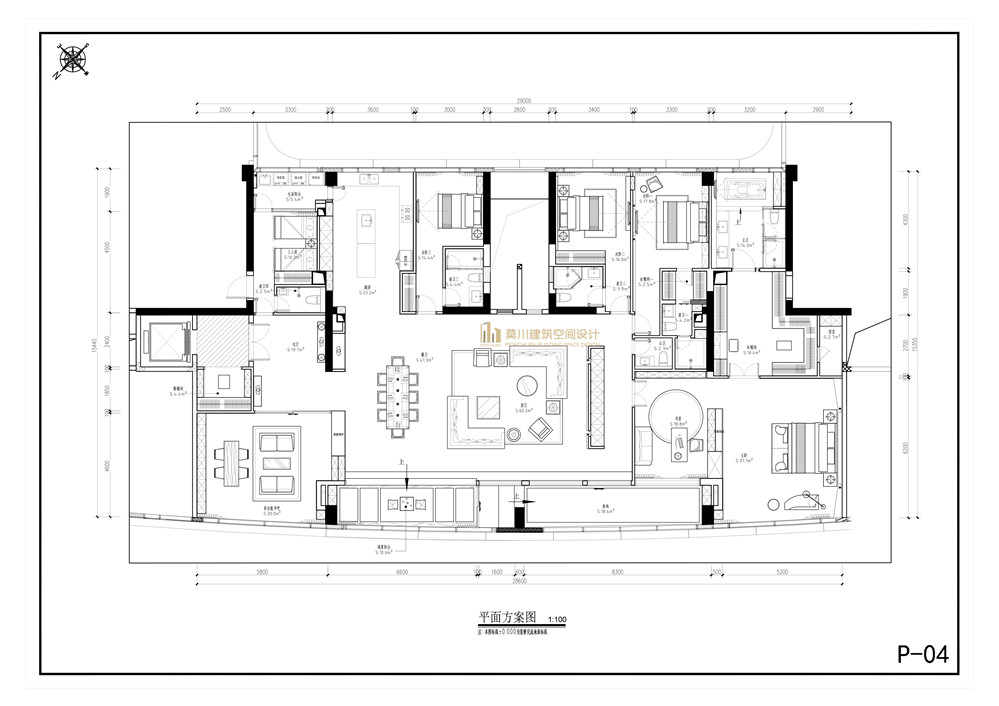
[平面布置圖]

4. 區域空間
[客廳]
從玄關一進入,天花兩條明確指向性的燈帶設計將目光引到背景墻,
稀缺石材歐卡曼灰的使用,灰中帶藍的天然色澤,簡約中透著無比的貴氣與品味。
左邊是一整面平整的進口飾面板墻面和穿插的立面燈光設計,
右側是大幅落地窗,能看到舒適的觀景陽臺,透明泳池灑進的藍藍波光以及窗外美不勝收的風景。
以觀景陽臺,透明泳池灑進的藍藍波光以及窗外美不勝收的風景。
以“ 左右逢源”的方式經過餐桌,落座舒適的進口家私回身望的方式經過餐桌,
落座舒適的進口家私回身望去,是展示墻設計,與背景墻呼應的石材下是鏤空的酒精爐,
實現了兩個空間的去,是展示墻設計,與背景墻呼應的石材下是鏤空的酒精爐,實現了兩個空間的“ 通與不通”。
保證了兩個空間各自的隱私又實現了空間上的透氣。
右側的大臥式陳列柜給人一種驀然回首卻在燈火闌珊處的感覺,
我們力求把奢華融進生活,不刻意張揚顯擺,一顰一笑卻盡顯奢華與品味。

一整面平整的進口飾面板墻面和穿插的立面燈光設計,右側是大幅落地窗,能看到舒適的觀景陽臺,
透明泳池灑進的藍藍波光以及窗外美不勝收的風景。正面對的燈帶很有方向性,儀式感強。

餐廳吊燈的選擇不但在造型材質上是很好的點綴,同時采用金錢勾的簡化造型,寓意好。

[主臥]
主臥床頭背景采用半圍合設計,提升尊貴感和睡眠舒適度,提升安穩感。
造型上采用寶石的截面造型,形成3D 效果的多角度起伏,內藏燈帶,光線柔和不直射人眼,
氛圍營造適合人居。電視背景墻 與客廳背景墻呼應的石材下是鏤空的機頂盒放置位和透明酒精爐,
實現了兩個空間的“ 通與不通”。保證了臥式 。
保證了臥式與起居室之間兩個空間各自的隱私又實現了空間上的透氣。
同時在酒精爐使用時也更加節能環保。

主臥床頭背景采用半圍合設計,提升尊貴感和睡眠舒適度,提升安穩感。
造型上采用寶石的截面造型,形成3D 效果的多角度起伏,內藏燈帶,光線柔和不直射人眼,
氛圍營造適合人居。天花保留極簡造型,燈帶與羅槽配合,注重細節的把控。

[衣帽間]
同樣的儀式感天花燈帶設計將人帶入這個如鉆石般閃耀的額空間,專屬定制的短絨地毯提升了整個空間的溫度。
茶色玻璃門既保證了了衣柜的通透性,同時又保證了隱私性,更加實用。
梵克雅寶同款吊燈最好的展示了珠寶陳列柜的華美。衣柜內部有暗室(安全屋)設置,
具備防火防盜功能,獨立新風系統與通訊系統,保證,業主在各種情況下的安全。

[主衛]
利用燈光強調注重水的流動感是我們在這個空間營造的重點,粼粼波光也如鉆石般閃耀。
大理石洗手臺四周落水槽里散發出的光線,讓人在使用洗手池時能很好地觀察到水的動態與流逝。
淋浴區與浴缸區的燈光設計很好的營造了不同場景下的燈光氛圍。
大面積愛馬仕灰與新古堡灰的穿插使用與黑波形成顏色上的層次與對比,
香檳金色不銹鋼點綴其間,整體打造一個個性時尚的高端衛浴空間。

[書房]
會客書房主要是男主人的空間,我們把他設計的更符合一位成功男士的生活習慣。
雪茄,紅酒,工作,會客,影視皆具備。獨立的新風系統保證該空間的換氣與排煙。
書柜酒柜雪茄柜很好的滿足了這個空間的展示需求,
水吧臺設計為男主人獨立空間的營造提供了“ 足不出戶”的便利。

[次臥]
次臥我們的考慮簡潔舒適又不失尊貴。藍金沙電視背景墻的運用大氣美觀,
硬包背景墻也完成了燈光設計的照明需求。
我們力求休息空間更多的是見光不見燈,最大化的為入住者打造光線舒適自然的休息空間。
顏色比其他主要空間稍淺,空間更顯活躍青春,也是空間主次區分考慮。

[衣帽間]

[套衛]
很多地方的設計我們有關注使用者使用時的感官,比如這個衛生間,
他的洗手池單側使用玻璃材質,與客廳透明泳池異曲同工,是對水的尊重,是主題的呼應與彰顯。

[起居書房]
主臥起居室,更接近女主人的書房,夫妻二人起居休憩于此,相向而坐聊天說笑,愜意不已。
一進主臥通道現對較長,側面墻面做了整面柜體的布置,讓空間更加靈動,不顯呆板沉悶。

[次臥]

[套衛]

[工人房]

[鞋帽間]

[觀景陽臺]

[外看泳池]

[廚房]

0755-83333299
莫川裝飾集團總部 :南山區華潤前海大廈A座23層
深圳福田設計院 :福田區卓越世紀中心4號樓506-507室
莫川蛇口設計院 :南山區蛇口招商局廣場24樓EF
深圳龍華設計院 :龍華區安宏基天曜廣場1棟A座12層E
深圳深灣設計院 :南山區后海片區卓越后海中心2509-2510
深圳寶安設計院 :深圳市寶安區前海科興科學園1棟806
莫川香港設計院 :香港中環皇后大道中16-18號新世界大廈14層
莫川主材定制展廳:南山區高新北二道16號清溢光電大廈4樓
Copyright@ 2015-2017 深圳市莫川建筑空間設計有限公司 版權所有 網站地圖 粵ICP備17082150號 粵公網安備 44030402000770號