
項目地址:廣東省深圳市南山區
戶型: 復式
裝修風格: 現代簡約
項目面積: 100㎡
設計費:¥60000
施工費:¥180000
1. 基本信息
項目地址:廣東省深圳市南山區
戶型: 復式
裝修風格:現代風格
項目面積:100平
2. 預 算
設計費:¥60000
施工費:¥180000(半包)
3. 設計說明
設計靈感首先是基于業主的需求,希望新家是精致、舒適的一個空間,
所以在整體空間上,盡可能的將原有的陽臺內包,擴大其實用面積,
同時將多余的墻體打掉,儲物柜以壁柜出現,讓整個空間動線,和儲物上都得到了提升,
加大了空間的通風和采光功能,舒適都得到提升。
立面上面,運用了大量木質材質和灰色水泥板來結合點綴,增加整個硬裝的細節感,
整個空間也更加溫馨,然后配上舒適度極高的家私,讓回家的主人得到充分的放松休息。
4. 設計亮點
空間沒有充分實用,使得原有的室內空間比較緊湊。
(解決方法:內包搭建之后,整個空間增加了很多,舒適度得到了很大改善,更適合居住)
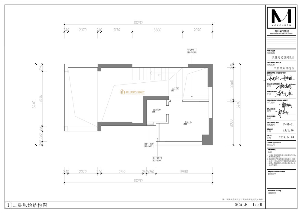
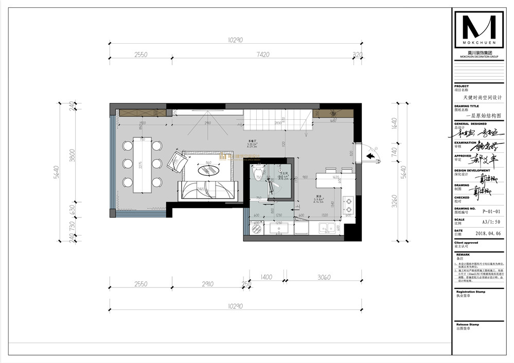
[原始結構圖-1層]

[原始結構圖-2層]

[平面布置圖-1層]

[平面布置圖-2層]

5. 區域空間
[客廳]

[餐廳]

[主臥]

[多功能房]

[次臥]

[廚房]

[二樓樓梯]

[衛生間]

0755-83333299
莫川裝飾集團總部 :南山區華潤前海大廈A座23層
深圳福田設計院 :福田區卓越世紀中心4號樓506-507室
莫川蛇口設計院 :南山區蛇口招商局廣場24樓EF
深圳龍華設計院 :龍華區安宏基天曜廣場1棟A座12層E
深圳深灣設計院 :南山區后海片區卓越后海中心2509-2510
深圳寶安設計院 :深圳市寶安區前海科興科學園1棟806
莫川香港設計院 :香港中環皇后大道中16-18號新世界大廈14層
莫川主材定制展廳:南山區高新北二道16號清溢光電大廈4樓
Copyright@ 2015-2017 深圳市莫川建筑空間設計有限公司 版權所有 網站地圖 粵ICP備17082150號 粵公網安備 44030402000770號