設計主題:坐擁人間煙火,靜看清淺流年
設計亮點:
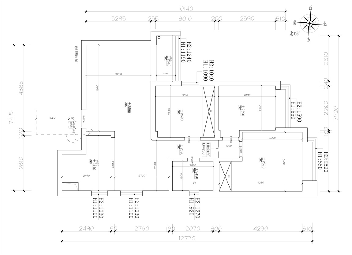
①原有洗手間面積小,通過墻體的改造,門洞的移位,使洗手間面積增大,同時能預留出大的浴室柜
②原始戶型,立面方正度,整體性不強,通過墻面,天花的造型線條,比例的設計,使得空間方正感更強,墻面及天花的銜接更協調
③原有廚房墻上有入戶水管,煤氣管,下水管等,影響地柜的空間利用率,也影響了電器的放置,通過對廚房的所有管道重新進行合理規劃布置,讓洗碗機,洗衣機,蒸烤箱等廚房電器能安置于廚房里面,使用起來更加方便,功能性更多
項目地址:梅林一村
戶型: 三室
裝修風格: 現代簡約
項目面積: 80㎡
設計費:¥30000
施工費:¥550000








0755-83333299
莫川裝飾集團總部 :南山區華潤前海大廈A座23層
深圳福田設計院 :福田區卓越世紀中心4號樓506-507室
莫川蛇口設計院 :南山區蛇口招商局廣場24樓EF
深圳龍華設計院 :龍華區安宏基天曜廣場1棟A座12層E
深圳深灣設計院 :南山區后海片區卓越后海中心2509-2510
深圳寶安設計院 :深圳市寶安區前海科興科學園1棟806
莫川香港設計院 :香港中環皇后大道中16-18號新世界大廈14層
莫川主材定制展廳:南山區高新北二道16號清溢光電大廈4樓
Copyright@ 2015-2017 深圳市莫川建筑空間設計有限公司 版權所有 網站地圖 粵ICP備17082150號 粵公網安備 44030402000770號