設計亮點:
計師選擇用更簡約的線條來勾勒出意式空
間
在視覺上給人一種精致和奢華的現代體驗
無主燈和局部線性燈光設計
融合自然紋理的奢石點綴
設計師通過對材質/細節的整合把控
呈現出永恒經典的現代設計美學
天然的奢石 構成了高級且寧靜的居住環境
它不同于玉雕 或一般的建筑石材/大理石制品
它是對大型珍貴石材的創造性運用
蘊含貴族氣質 和對詩意自然生存狀態的領悟
是對自然美學的回歸
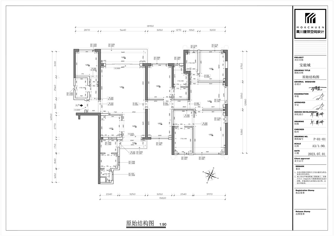
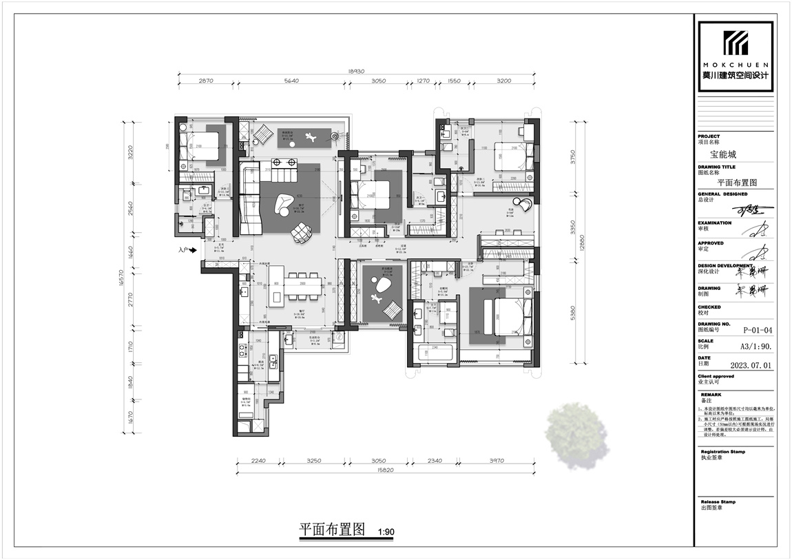
項目地址:寶能城花園
戶型: 四室及以上
裝修風格: 其他
項目面積: 235㎡
設計費:¥70000
施工費:¥1700000
















0755-83333299
莫川裝飾集團總部 :南山區華潤前海大廈A座23層
深圳福田設計院 :福田區卓越世紀中心4號樓506-507室
莫川蛇口設計院 :南山區蛇口招商局廣場24樓EF
深圳龍華設計院 :龍華區安宏基天曜廣場1棟A座12層E
深圳深灣設計院 :南山區后海片區卓越后海中心2509-2510
深圳寶安設計院 :深圳市寶安區前海科興科學園1棟806
莫川香港設計院 :香港中環皇后大道中16-18號新世界大廈
莫川主材定制展廳:南山區高新北二道16號清溢光電大廈4樓
Copyright@ 2015-2017 深圳市莫川建筑空間設計有限公司 版權所有 網站地圖 粵ICP備17082150號 粵公網安備 44030402000770號