設計主題:印記
設計亮點:
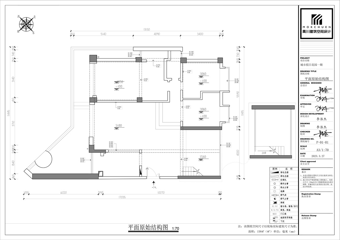
廚房整個挪到了陽臺去,原廚房的空間開放出來做了西廚島臺,操作實用,也可以在這里吃火鍋。
閣樓拆除,還原餐廳,兩側都做柜子收納,還原空間高度,還有通風
主臥墻借客廳15公分,床尾整面衣柜收納,解決收納痛點。
公衛主衛Z字形借位,實現完全的三分離。
次臥跟多功能房打通,平常給次臥套房當衣帽間使用,偶爾有客人住家又可以完全分離,翻板床設計,空間多功能化。
項目地址:城市假日花園
戶型: 三室
裝修風格: 現代簡約
項目面積: 167㎡
設計費:¥62000
施工費:¥540000












0755-83333299
莫川裝飾集團總部 :南山區華潤前海大廈A座23層
深圳福田設計院 :福田區卓越世紀中心4號樓506-507室
莫川蛇口設計院 :南山區蛇口招商局廣場24樓EF
深圳龍華設計院 :龍華區安宏基天曜廣場1棟A座12層E
深圳深灣設計院 :南山區后海片區卓越后海中心2509-2510
深圳寶安設計院 :深圳市寶安區前海科興科學園1棟806
莫川香港設計院 :香港中環皇后大道中16-18號新世界大廈
莫川主材定制展廳:南山區高新北二道16號清溢光電大廈4樓
Copyright@ 2015-2017 深圳市莫川建筑空間設計有限公司 版權所有 網站地圖 粵ICP備17082150號 粵公網安備 44030402000770號