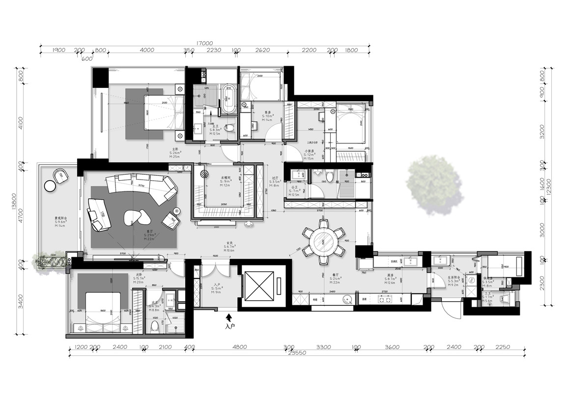
設計說明:
1.電梯廳鞋柜設計是結合了放拖鞋位置及換鞋凳的功能 入目整齊有序 巧妙留了春聯的位置。
2.大理石材質從玄關到客廳的呼應 視線延伸。
3.電視背景利用原有凹位做平墻面 外觀整齊 用材質切分進行層次劃分 有序而統一。
4.餐廳區域不銹鋼材質結合豎向燈光 是整個餐廳的視覺焦點 鏤空部分做酒類展示 其他封閉區域更好的儲藏。
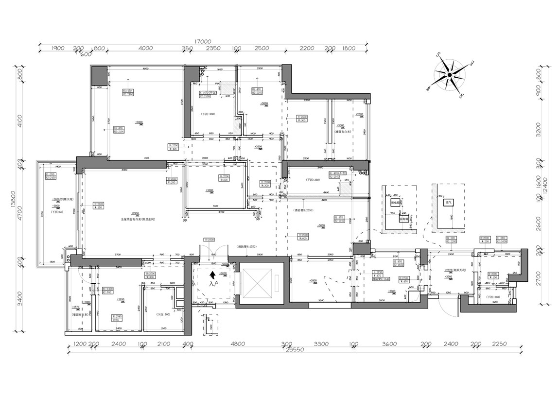
項目地址:天健天驕北廬
戶型: 四室及以上
裝修風格: 現代簡約
項目面積: 235㎡
設計費:¥93600
施工費:¥423000




















0755-83333299
莫川裝飾集團總部 :南山區華潤前海大廈A座23層
深圳福田設計院 :福田區卓越世紀中心4號樓506-507室
莫川蛇口設計院 :南山區蛇口招商局廣場24樓EF
深圳龍華設計院 :龍華區安宏基天曜廣場1棟A座12層E
深圳深灣設計院 :南山區后海片區卓越后海中心2509-2510
深圳寶安設計院 :深圳市寶安區前海科興科學園1棟806
莫川香港設計院 :香港中環皇后大道中16-18號新世界大廈
莫川主材定制展廳:南山區高新北二道16號清溢光電大廈4樓
Copyright@ 2015-2017 深圳市莫川建筑空間設計有限公司 版權所有 網站地圖 粵ICP備17082150號 粵公網安備 44030402000770號