設計說明:
1.整體燈光氛圍做的比較多 每個暗的區域都會有暗藏燈光
2.不會特意區分小孩房,以普通臥室的風格來設計小孩房
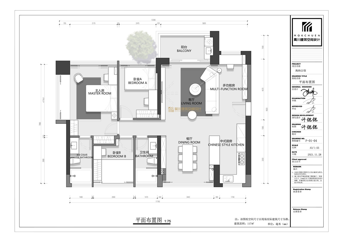
3.本案是客戶從其他公司退施工后,而后跟公司合作,原始設計中客餐廳依舊遵從原版設計,重新出圖做細微調整,過道及臥室衛生間空間重做設計,色調統一調整,整個做成了極簡的黑白灰色調。
項目地址:海納公館
戶型: 三室
裝修風格: 現代簡約
項目面積: 117㎡
設計費:¥46800
施工費:¥210600










0755-83333299
莫川裝飾集團總部 :南山區華潤前海大廈A座23層
深圳福田設計院 :福田區卓越世紀中心4號樓506-507室
莫川蛇口設計院 :南山區蛇口招商局廣場24樓EF
深圳龍華設計院 :龍華區安宏基天曜廣場1棟A座12層E
深圳深灣設計院 :南山區后海片區卓越后海中心2509-2510
深圳寶安設計院 :深圳市寶安區前海科興科學園1棟806
莫川香港設計院 :香港中環皇后大道中16-18號新世界大廈14層
莫川主材定制展廳:南山區高新北二道16號清溢光電大廈4樓
Copyright@ 2015-2017 深圳市莫川建筑空間設計有限公司 版權所有 網站地圖 粵ICP備17082150號 粵公網安備 44030402000770號