設計亮點:
將入戶與廚房之間的隔墻打掉,重新調整空間布局。廚房與餐廳之間做了吧臺作為隔斷,增多廚房操作臺面的同時,多了一個吧臺空間,供主人休閑品酒。改變入戶門的開啟方向,將入戶鞋柜酒柜及餐邊柜做成一體式,通過柜子不同的小設計和門板材質造型的選擇來豐富柜體設計,達到功能與·美觀兼備。主臥利用兒童房與主臥的尺寸差,挪出一個柜體位給到主臥,同時精簡衛生間功能,給主臥有一個梳妝的更衣間。
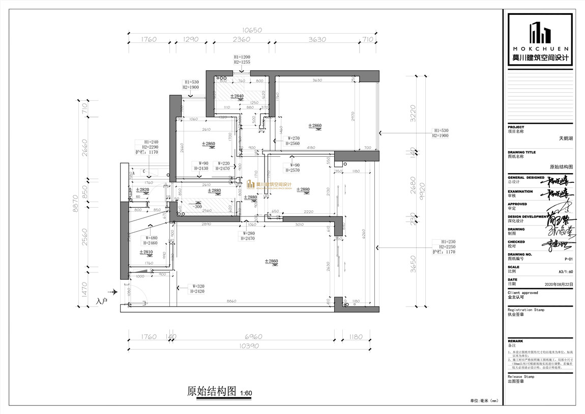
項目地址:天鵝湖
戶型: 三室
裝修風格: 現代簡約
項目面積: 107㎡
設計費:¥42800
施工費:¥192600












0755-83333299
莫川裝飾集團總部 :南山區華潤前海大廈A座23層
深圳福田設計院 :福田區卓越世紀中心4號樓506-507室
莫川蛇口設計院 :南山區蛇口招商局廣場24樓EF
深圳龍華設計院 :龍華區安宏基天曜廣場1棟A座12層E
深圳深灣設計院 :南山區后海片區卓越后海中心2509-2510
深圳寶安設計院 :深圳市寶安區前海科興科學園1棟806
莫川香港設計院 :香港中環皇后大道中16-18號新世界大廈14層
莫川主材定制展廳:南山區高新北二道16號清溢光電大廈4樓
Copyright@ 2015-2017 深圳市莫川建筑空間設計有限公司 版權所有 網站地圖 粵ICP備17082150號 粵公網安備 44030402000770號