設計靈感:
設計靈感首先是基于業主的需求,希望新家是精致、舒適的一個空間,所以在整體空間上,動線分明,動靜區域劃分清晰,流暢,空間的通風和采光功能良好,舒適度得到提升。業主本人喜歡新中式風格,立面上造型用到穿插,轉折,留白,非對稱,對稱等設計手法,營造整體中式氛圍,同時不失現代感。
設計亮點:
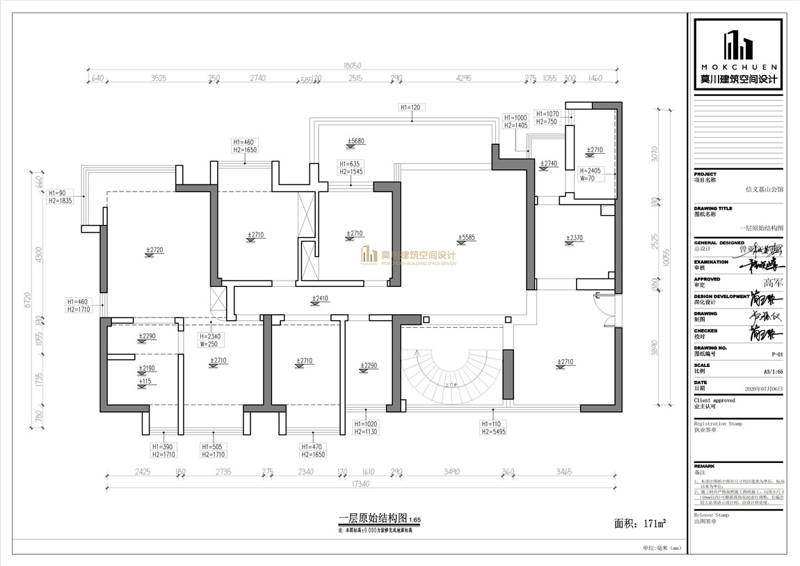
設計中將戶型的原始樓梯拆除,改至原戶型公衛位置,動線改變,整體空間利用面積增大,動線也更加流暢,樓梯側面墻體因有煤氣管道包裹其中不能完全打掉,樓梯設計中將一邊樓梯距離縮短,踏步上增加燈帶,第一步樓梯闊寬,打破常規,使得樓梯也可以成為裝飾品。
項目地址:荔山公館
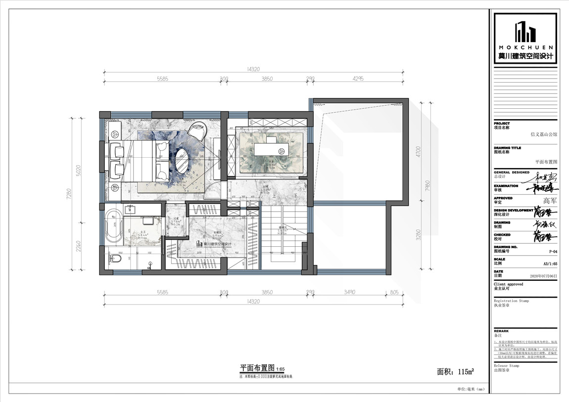
戶型: 別墅會所
裝修風格: 新中式
項目面積: 414㎡
設計費:¥248400
施工費:¥745200





























0755-83333299
莫川裝飾集團總部 :南山區華潤前海大廈A座23層
深圳福田設計院 :福田區卓越世紀中心4號樓506-507室
莫川蛇口設計院 :南山區蛇口招商局廣場24樓EF
深圳龍華設計院 :龍華區安宏基天曜廣場1棟A座12層E
深圳深灣設計院 :南山區后海片區卓越后海中心2509-2510
深圳寶安設計院 :深圳市寶安區前海科興科學園1棟806
莫川香港設計院 :香港中環皇后大道中16-18號新世界大廈14層
莫川主材定制展廳:南山區高新北二道16號清溢光電大廈4樓
Copyright@ 2015-2017 深圳市莫川建筑空間設計有限公司 版權所有 網站地圖 粵ICP備17082150號 粵公網安備 44030402000770號