設計主題:
整體氛圍簡潔干凈,實用為主,所以我們用貫穿的柜體設計代替藝術造型,整體采用大面積的淺色調加以局部冷色調讓空間顯得不那么躁動,能夠更安靜的享受書本里帶來的快樂,讓飯后之于,沉侵在書的海洋之中,三代同堂其樂融融,感受著家的溫度。
設計亮點:
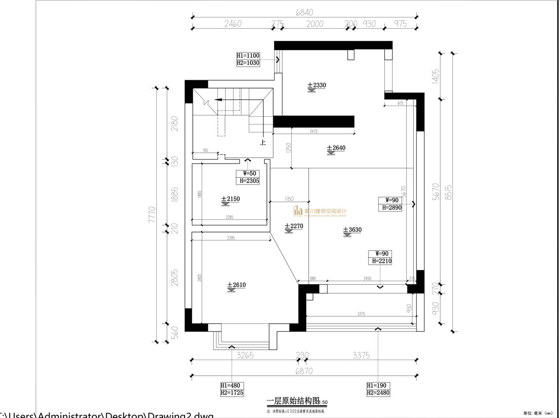
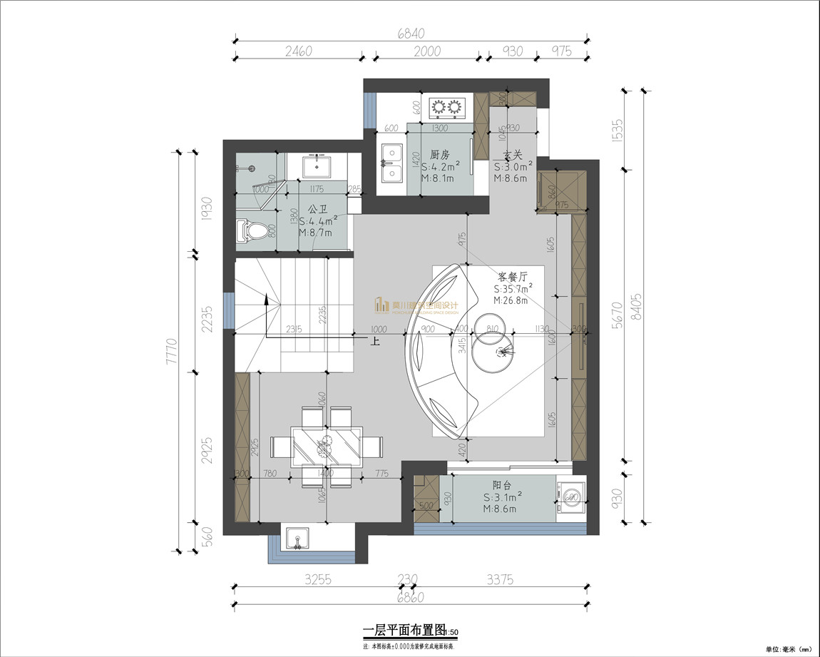
樓梯位置的變化,讓原本“擁擠”的空間更加的開闊,讓每個空間不再孤立。
項目地址:書香門第
戶型: 復式
裝修風格: 法式
項目面積: 167㎡
設計費:¥66800
施工費:¥300600
















0755-83333299
莫川裝飾集團總部 :南山區華潤前海大廈A座23層
深圳福田設計院 :福田區卓越世紀中心4號樓506-507室
莫川蛇口設計院 :南山區蛇口招商局廣場24樓EF
深圳龍華設計院 :龍華區安宏基天曜廣場1棟A座12層E
深圳深灣設計院 :南山區后海片區卓越后海中心2509-2510
深圳寶安設計院 :深圳市寶安區前海科興科學園1棟806
莫川香港設計院 :香港中環皇后大道中16-18號新世界大廈14層
莫川主材定制展廳:南山區高新北二道16號清溢光電大廈4樓
Copyright@ 2015-2017 深圳市莫川建筑空間設計有限公司 版權所有 網站地圖 粵ICP備17082150號 粵公網安備 44030402000770號