設計說明:
業主工作在美國,有獨特的美式文化,獨特的貴族式的自信,比較中意美式風格家私,女主對生活品質較高,于是設計師再溝通后將風格定位于舒適奢華的經典美式。大氣,不造作,隨意舒適為特點,盡量多的采用玻璃門以及合理利用陽臺,避免了美式古典風格色彩過于暗淡的情況發生,同時也加入了現代風格穿插其中,但同時也不失懷舊,浪漫的感覺。
設計亮點:
1.一層可以整體往前移,即擴大了老人房與廚房的使用面積,也給整個空間形成整體的既視感。
2.一層老人房利用陽臺面積給到老人房做了個書房,這樣老人房也變得奢華大方。
3.二層書房利用電梯廳做個閣樓,冗長的空間剛好可以放書柜。
4.二層利用挑空搭建了兩個兒童房,利用后陽臺搭建了兩個小孩房的書房。
5.原來的樓梯從客廳的中間往后移,以此劃分客廳與餐廳區域。
項目地址:星河時代
戶型: 別墅會所
裝修風格: 美式風格
項目面積: 320㎡
設計費:¥128000
施工費:¥480000
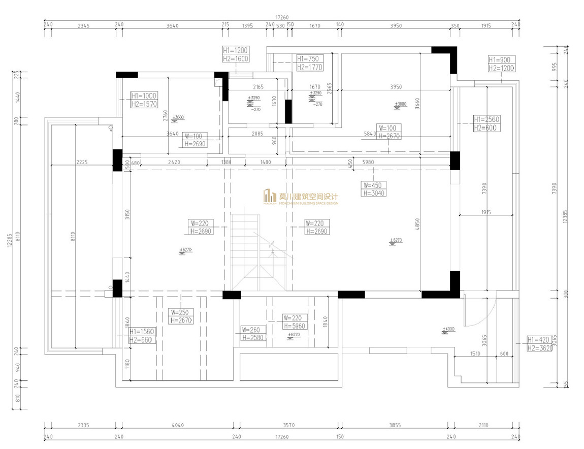
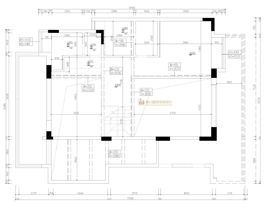
原始戶型圖
一層
二層
平面方案圖
一層
二層
客廳
客餐廳整體以橡木為硬裝主要裝飾。電視與沙發背景墻都采用對稱設計,細節處,美式雕花外框的掛畫,羅馬柱以及各種藝術藏品,像定格的時光,留待人們喜喜品味。壁爐的設計充滿美式的韻味。真正的奢華隱藏于細節的雕刻中,雕花工藝底座宛如一朵紫金花,讓生活更添藝術色彩。
餐廳
餐廳契合中國團團圓圓滿的希冀,采用了圓形橡木桌,且天花的圓盤吊頂,與圓餐桌形成呼應。一旁的酒柜可以儲蓄美酒,并彰顯主人的收藏品味和高雅風趣。
主臥
主臥,設計師再次將西方的浪漫旖旎完美展現,窗簾一抹柔和輕緩的淺灰藍,牽引處美式古典的浪漫情韻,是空間最為亮麗的一道風景。
茶室
茶室在餐廳的對面,這個被單獨規劃出來的空間格外的雅致,是木質的茶臺與木椅,茶臺上精美的茶具,別致的綠植,流露處文人雅士的高級品味,茶臺背后的柜子精美的分為多格,在燈光的照射下,古樸而又別具一格。
樓梯間
樓梯是空間的設計亮點,旋轉式的樓梯與魚肚白大理石的臺階又為空間增加現代感,樓梯中間的端景也極具高雅。
書房
書房承擔了屋主閱讀,工作及休閑的功能,長方形的書房在簡約的輪廓下,透過黑色系裝飾墻面與柜子營造出和諧高雅的調性,讓視野能穿透及篩選景致,設計師更以量體分割的虛實手法,運用異性材質的交疊,為居室敘述細膩的生活美學。
衣帽間
兒童房
父母房
電梯廳
保姆房
衛生間
陽臺

0755-83333299
莫川裝飾集團總部 :南山區華潤前海大廈A座23層
深圳福田設計院 :福田區卓越世紀中心4號樓506-507室
莫川蛇口設計院 :南山區蛇口招商局廣場24樓EF
深圳龍華設計院 :龍華區安宏基天曜廣場1棟A座12層E
深圳深灣設計院 :南山區后海片區卓越后海中心2509-2510
深圳寶安設計院 :深圳市寶安區前海科興科學園1棟806
莫川香港設計院 :香港中環皇后大道中16-18號新世界大廈14層
莫川主材定制展廳:南山區高新北二道16號清溢光電大廈4樓
Copyright@ 2015-2017 深圳市莫川建筑空間設計有限公司 版權所有 網站地圖 粵ICP備17082150號 粵公網安備 44030402000770號