設計說明:
本案以國際理念出發,從結構,功能,顏色,燈光四大方面入手,使得空間各方面美觀大方實用,充分利用空間,以滿足客戶的所有需求。
設計亮點:
1.本案整體空間以米灰色搭配木色為主色調,整個空間給人一種非常溫馨舒適的感覺。
2.整個客廳電視背景墻采用雙7字造型正反互補,電視機位置內凹背面藏燈帶,組合柜的形式既豐富了空間達到美觀度又考慮了實用的角度。天花橫向拉槽也是結合筒燈做一個橫向的連續。
3.主臥床頭背景采用格柵和內凹木飾面左右不均等的設計手法結合床頭壁燈及臺燈體現不對稱的美感。
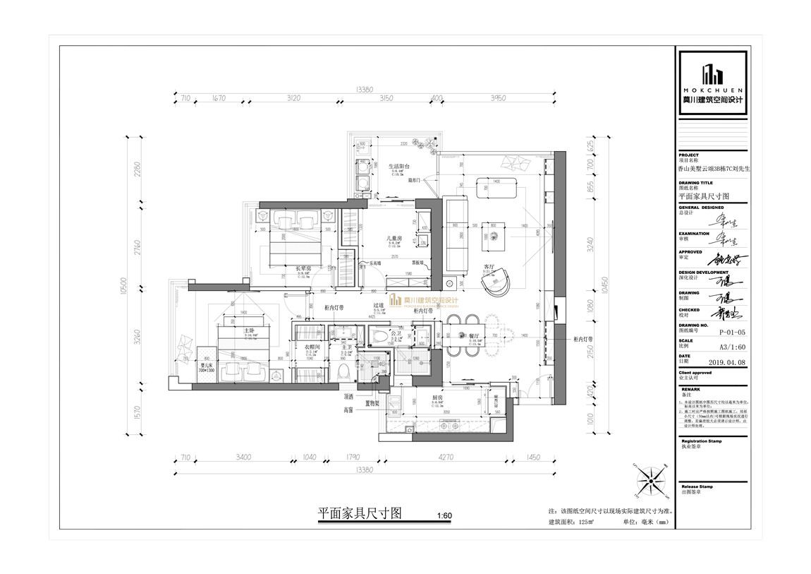
項目地址:香山美墅
戶型: 三室
裝修風格: 現代簡約
項目面積: 125㎡
設計費:¥50000
施工費:¥225000










0755-83333299
莫川裝飾集團總部 :南山區華潤前海大廈A座23層
深圳福田設計院 :福田區卓越世紀中心4號樓506-507室
莫川蛇口設計院 :南山區蛇口招商局廣場24樓EF
深圳龍華設計院 :龍華區安宏基天曜廣場1棟A座12層E
深圳深灣設計院 :南山區后海片區卓越后海中心2509-2510
深圳寶安設計院 :深圳市寶安區前海科興科學園1棟806
莫川香港設計院 :香港中環皇后大道中16-18號新世界大廈14層
莫川主材定制展廳:南山區高新北二道16號清溢光電大廈4樓
Copyright@ 2015-2017 深圳市莫川建筑空間設計有限公司 版權所有 網站地圖 粵ICP備17082150號 粵公網安備 44030402000770號