
戶型分析:
缺點:
1.右上角異行折角,利用率不高,廚房餐廳采光差。
2:衛生間旁邊儲物間位置尷尬,空間浪費。
3:次臥,主臥窗戶上面有很大一塊返梁,造成空間壓抑。
4:入戶門直通陽臺。
優點:
動線分明,房屋結構相對方正。
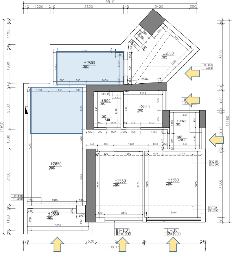
采光分析:
黃色箭頭代表采光方向及位置,藍色區域為采光不足區域
平面布置方案:
平面方案優化分析:
1.優化右上角折角區域,減小生活陽臺空間增加廚房空間,通過廚房倆出入口玻璃推拉門的設計增加廚房和餐廳采光。
2:主臥和衣帽間的一體設計增加了空間的利用率。增加了儲物空間
3:隔斷的設計,打破了原有直通的動線,增加了生活的神秘感。風水上完美解決了。
平面方案儲物示意:

平面方案動線分析:
空間示意圖:













Copyright@ 2015-2017 深圳市莫川建筑空間設計有限公司 版權所有 網站地圖 粵ICP備17082150號 粵公網安備 44030402000770號