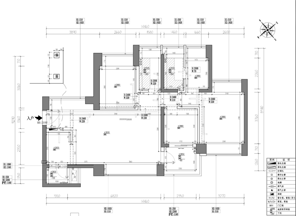
原始戶型圖



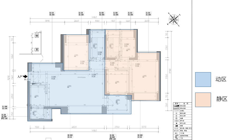
戶型結構分析
缺點:
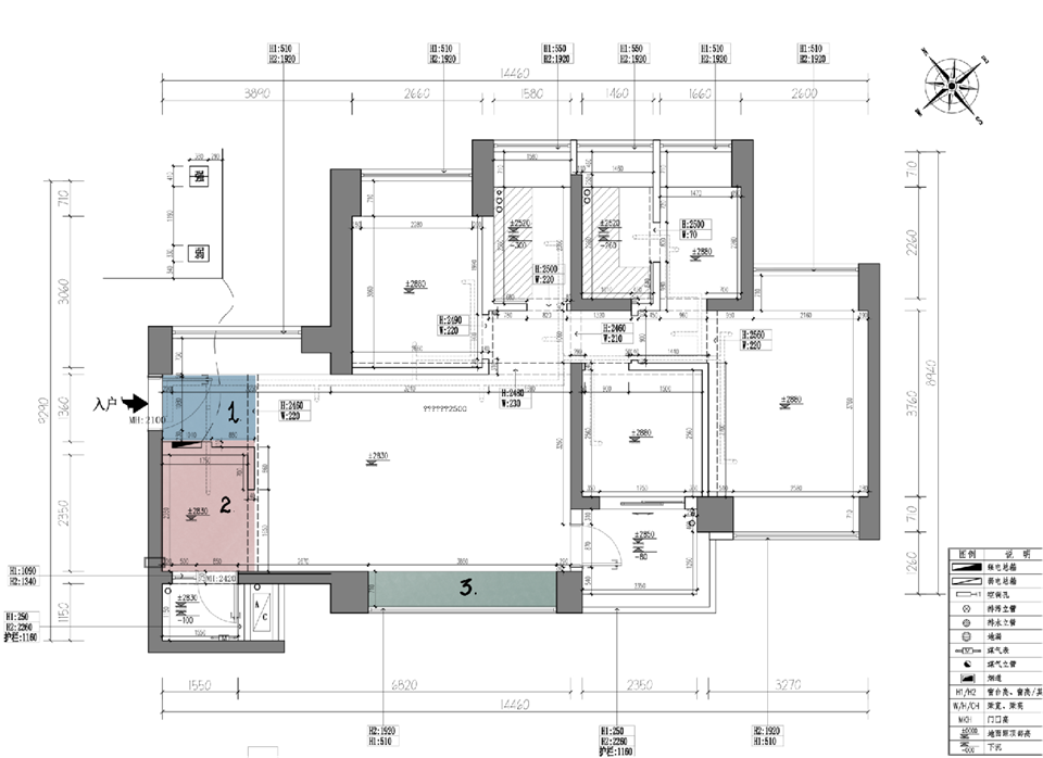
1.玄關面積過小,缺少儲物。
2.廚房過小,臺面和儲物空間不足。
3.客廳飄窗如何利用。





入戶衣帽間效果圖
主臥效果圖:
兒童房效果圖:
書房手繪效果圖:
衛生間手繪效果圖:
衛生間手繪效果圖2:
衣帽間手繪效果圖:
軟裝搭配展示:
設計元素:
客廳軟裝
餐廳軟裝
燈飾軟裝
陶瓷軟裝
掛畫軟裝
抱枕軟裝
地毯軟裝
材料示意:
Copyright@ 2015-2017 深圳市莫川建筑空間設計有限公司 版權所有 網站地圖 粵ICP備17082150號 粵公網安備 44030402000770號