該案例位于深圳福田榮超城市花園,面積75平。業主是一對超級年輕的夫婦,近期來不考慮要小孩,所以常住人口短期來說就兩人,男業主是一個愛好攝影的IT達人,喜歡用鏡頭去記錄生活,喜歡比較豐富的色彩。


深圳裝修,靜謐的午后,柜上有藏書,身邊有佳人,門外是車水馬龍,門里是其樂融融。 #沙發 #客廳 #茶幾





廚房
廚房外面的墻壁我們將冰箱做了一個內嵌處理,同時又做了隔板+柜體的多種儲物形式,大大提升空間利用率。


廚房雖小,五臟俱全,原木色+灰色的巧妙搭配,空間很有層次感。
餐廳的的儲物與裝飾品是最大的亮點,我們放置了陶瓷、鐵藝、干花、創意擺設等具有北歐風情的物品,以此來營造出北歐格調。





主臥的色彩比客廳更深,也更顯靜謐柔和。


主臥L形的衣柜儲物強大。

這是多功能房,業主很年輕,暫時不打算要小孩,多功能房是平時的工作間,業主拍攝的作品會到這修圖。



男業主修圖,女業主提供“指導”,一起回看鏡頭下的精彩瞬間。
深圳裝修六邊形瓷磚超好看!

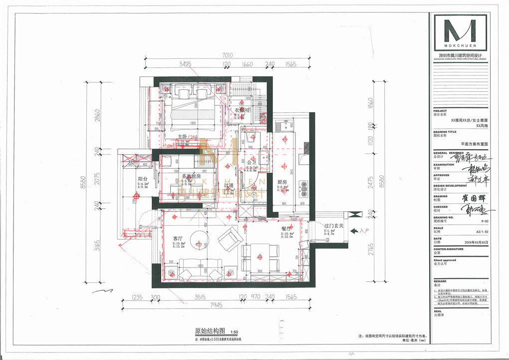
原始結構1、層高較低,空間顯壓抑
2、受戶型影響,房間采光與通風不足
3、俗話說民以食為天,廚房這地方關系到一家人的“天”。而在本案中廚房面積不夠敞亮
4、對于兩口之家來說,次臥實用性不強,且過道太寬浪費空間。沒有衣帽間,影響生活品質

1、天花的造型設計上,采用了非常簡約性的平頂天花設計。在燈飾選擇上,沒有考慮過多的去使用吊燈。
2、在空間的功能布局上,我們為空間做了重新的規劃,使得空間的實用性跟采光度得到最大的提升。
3、將狹小雞肋的生活陽臺內包進廚房,讓廚房的使用舒適度得到一個質的飛躍。
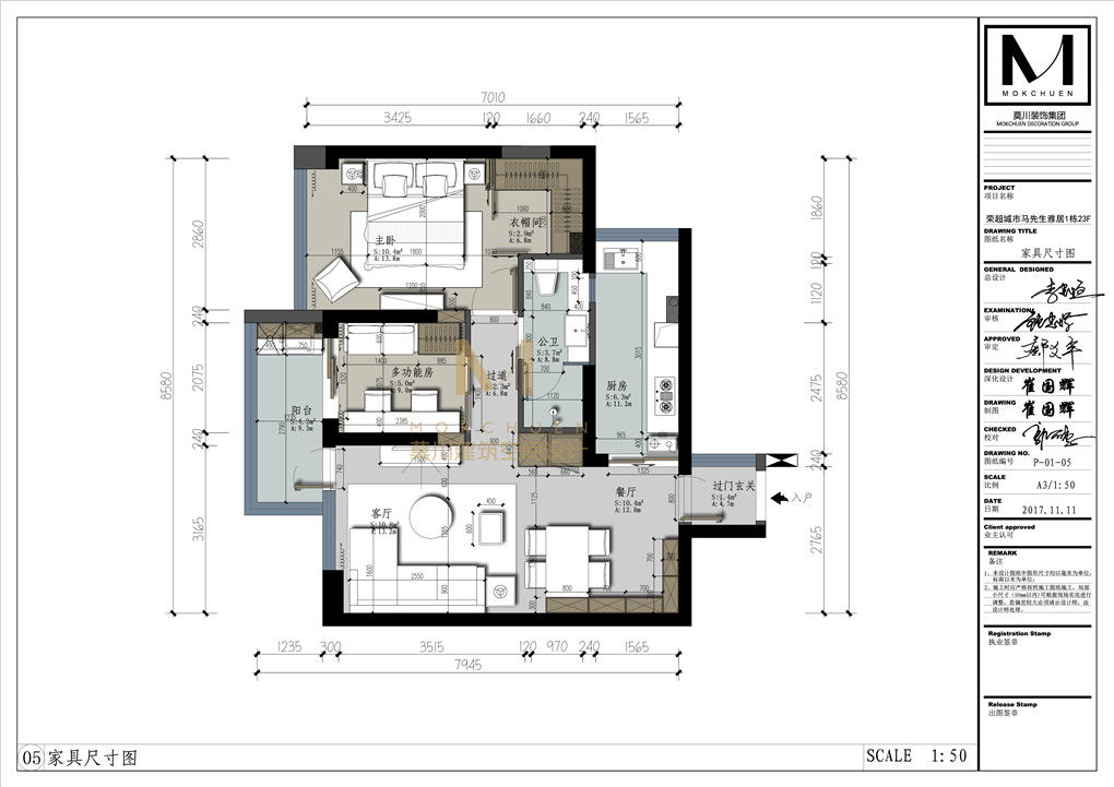
4、重新規劃格局,將原始衛生間打造成衣帽間,將原始過道打造成衛生間,將次臥打造成過道與多功能房,生活品質與空間利用率兩不誤。

往期回顧:
Copyright@ 2015-2017 深圳市莫川建筑空間設計有限公司 版權所有 網站地圖 粵ICP備17082150號 粵公網安備 44030402000770號