設計亮點:
在空間的改造上做了大手筆的調整,滿足了委托方的所有使用需求的基礎上大肆利用閑置空間,將空間的利用率壓縮到極致,因考慮委托方的家庭成員的復雜性,給到小朋友更大的活動空間將客廳縱向進行拆解,達到日常的閑置空間利用率。立面的效果我們針對性的對女主人的興趣空間做了古箏的收納柜,通過冷翡翠大理石的材質在現代極簡的整體氛圍上融合了一絲中國風的元素是的古箏在這個空間顯得合理又精致!大面積的公區使用的是純色的色塊分割確保空間的整體性和一致性!墻頂地的層次感更豐富,空間的橫向和縱向的視覺延伸效果也會更加的清晰!
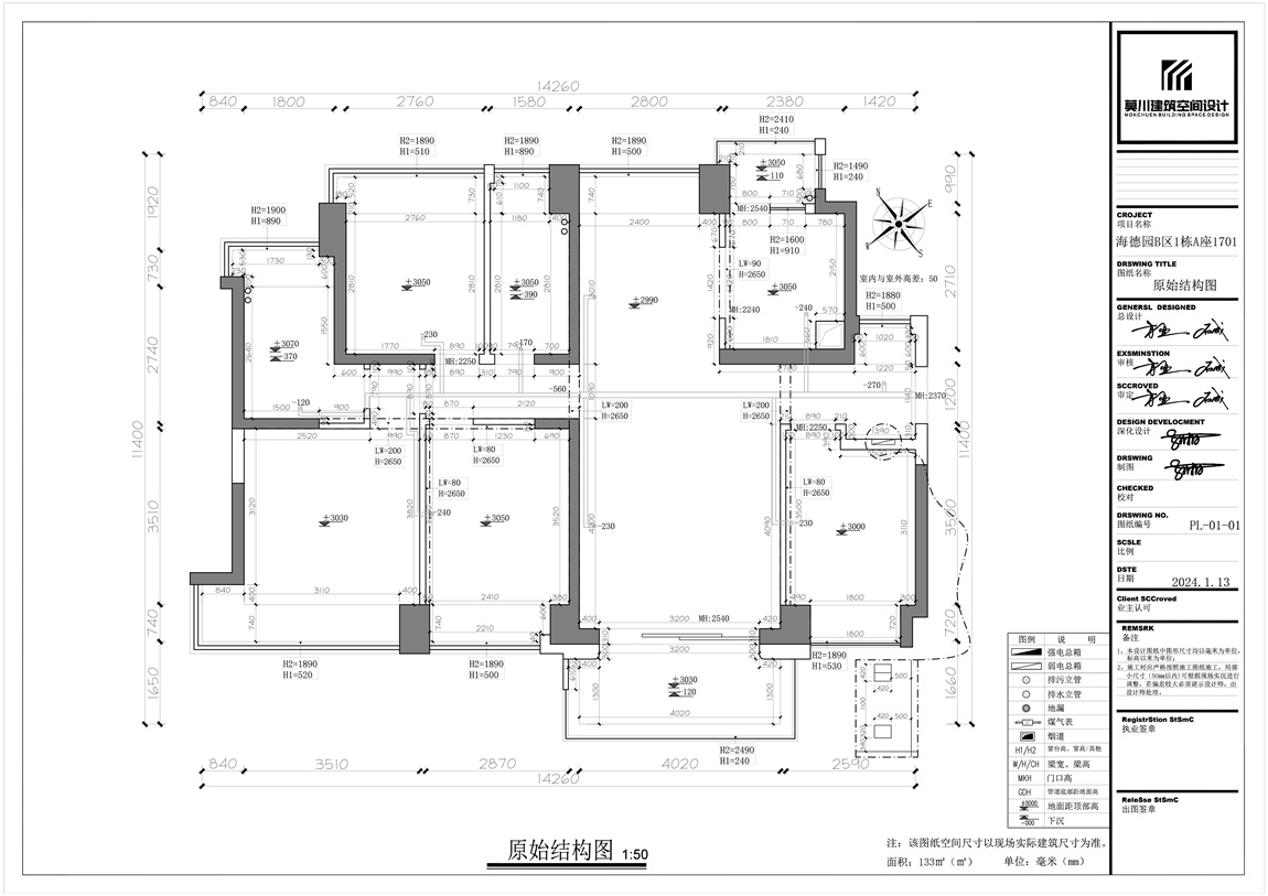
項目地址:福田區海德園B區
戶型: 四室及以上
裝修風格: 現代簡約
項目面積: 135㎡
設計費:¥50000
施工費:¥









0755-83333299
莫川裝飾集團總部 :南山區華潤前海大廈A座23層
深圳福田設計院 :福田區卓越世紀中心4號樓506-507室
莫川蛇口設計院 :南山區蛇口招商局廣場24樓EF
深圳龍華設計院 :龍華區安宏基天曜廣場1棟A座12層E
深圳深灣設計院 :南山區后海片區卓越后海中心2509-2510
深圳寶安設計院 :深圳市寶安區前海科興科學園1棟806
莫川香港設計院 :香港中環皇后大道中16-18號新世界大廈14層
莫川主材定制展廳:南山區高新北二道16號清溢光電大廈4樓
Copyright@ 2015-2017 深圳市莫川建筑空間設計有限公司 版權所有 網站地圖 粵ICP備17082150號 粵公網安備 44030402000770號