
項目地址:廣東省深圳市南山區
戶型: 商業工裝
裝修風格: 現代簡約
項目面積: 41㎡
設計費:¥20000
施工費:¥125000
1. 基本信息
項目地址:廣東省深圳市南山區
戶型: 工裝店鋪
裝修風格:現代風格
項目面積:41平
2. 預 算
設計費:¥20000
施工費:¥125000(半包)
3. 設計故事
一座繁華復雜的城市,川流不息的街道,終歸需要一些清新點綴,人們來到這里總是要收獲點什么,
我們在這里收獲的不僅僅是一杯檸檬茶,還收獲了一份舒適、一份甜美。
[原始結構圖]

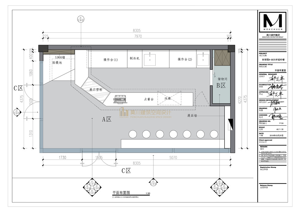
[平面布置圖]

4. 區域空間
[門面]

[店內]

0755-83333299
莫川裝飾集團總部 :南山區華潤前海大廈A座23層
深圳福田設計院 :福田區卓越世紀中心4號樓506-507室
莫川蛇口設計院 :南山區蛇口招商局廣場24樓EF
深圳龍華設計院 :龍華區安宏基天曜廣場1棟A座12層E
深圳深灣設計院 :南山區后海片區卓越后海中心2509-2510
深圳寶安設計院 :深圳市寶安區前??婆d科學園1棟806
莫川香港設計院 :香港中環皇后大道中16-18號新世界大廈14層
莫川主材定制展廳:南山區高新北二道16號清溢光電大廈4樓
Copyright@ 2015-2017 深圳市莫川建筑空間設計有限公司 版權所有 網站地圖 粵ICP備17082150號 粵公網安備 44030402000770號