
項目地址:廣東省深圳市南山區
戶型: 三室
裝修風格: 現代簡約
項目面積: 90㎡
設計費:¥36000
施工費:¥162000
1. 基本信息
項目地址:廣東省深圳市南山區
戶型: 2室2廳1廚1衛
裝修風格:現代風格
項目面積:90平
2. 預 算
設計費:¥36000
施工費:¥162000(半包)
3. 設計說明
年輕夫妻倆,外加一只可愛的阿拉斯加犬,科技大佬和企業高管的幸福家。
喜歡質感比較高級的家,不喜歡太過酒店商務風,希望回到家能夠放松下來。
女性格又干脆利落,男業主冷靜從容,矛盾又互補的存在,
所以整體家居的定位為現代,居家,質感,格調,
希望打造一個男女業主能夠喜歡待的家居氛圍,空間某一程度也有主人的氣質腔調。
4. 設計亮點
1、原始廚房狹小。
(解決方法:將廚房原始墻體打掉,利用一部分餐廳空間,將水吧臺外擴)
2、業主想要書房。
(解決方法:原始的陽臺打通,利用地面抬高的方式做區域劃分,做成一個獨立的書房)
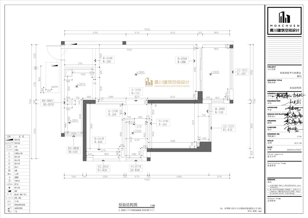
[原始結構圖]

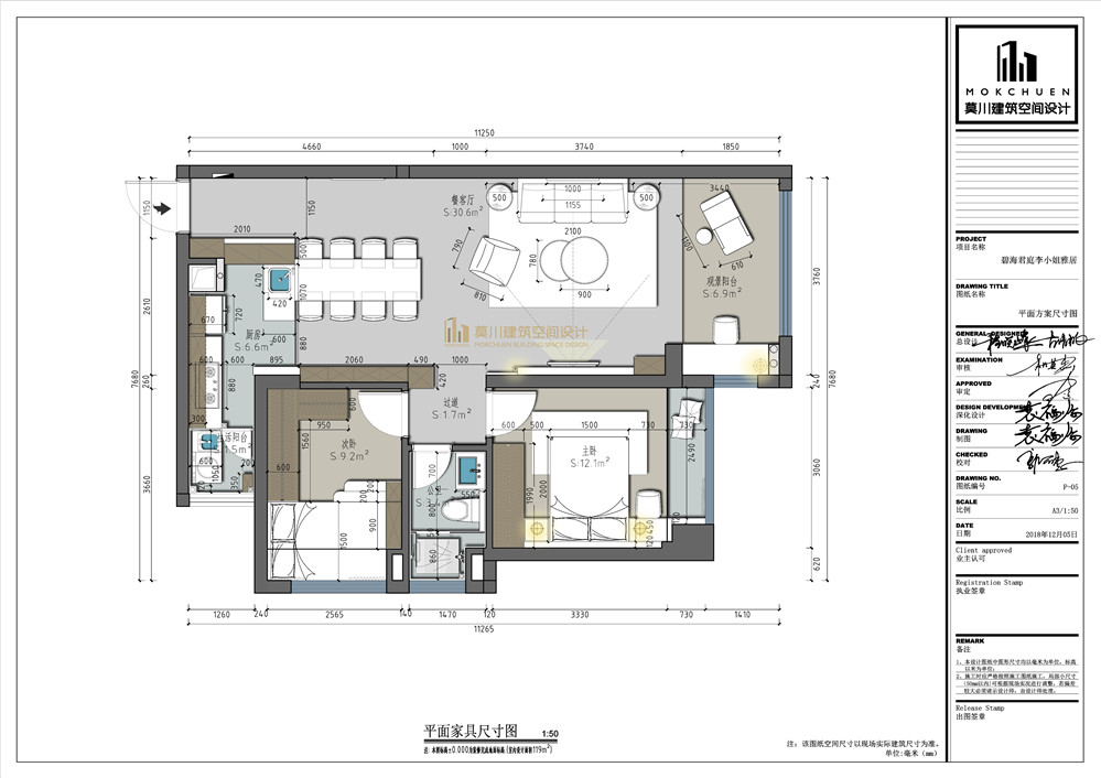
[平面布置圖]

5. 區域空間
[客餐廳]

















[主臥]






[榻榻米房]

[衛生間]

0755-83333299
莫川裝飾集團總部 :南山區華潤前海大廈A座23層
深圳福田設計院 :福田區卓越世紀中心4號樓506-507室
莫川蛇口設計院 :南山區蛇口招商局廣場24樓EF
深圳龍華設計院 :龍華區安宏基天曜廣場1棟A座12層E
深圳深灣設計院 :南山區后海片區卓越后海中心2509-2510
深圳寶安設計院 :深圳市寶安區前海科興科學園1棟806
莫川香港設計院 :香港中環皇后大道中16-18號新世界大廈14層
莫川主材定制展廳:南山區高新北二道16號清溢光電大廈4樓
Copyright@ 2015-2017 深圳市莫川建筑空間設計有限公司 版權所有 網站地圖 粵ICP備17082150號 粵公網安備 44030402000770號