設計靈感及設計整體思路:
圍繞著他們原有的企業文化再結合他們的工作需求進行的一系列的設計。
項目地址:南山區深圳灣科技園IT辦公室
戶型: 商業工裝
裝修風格: 現代簡約
項目面積: 156.6㎡
設計費:¥80000
施工費:¥153393
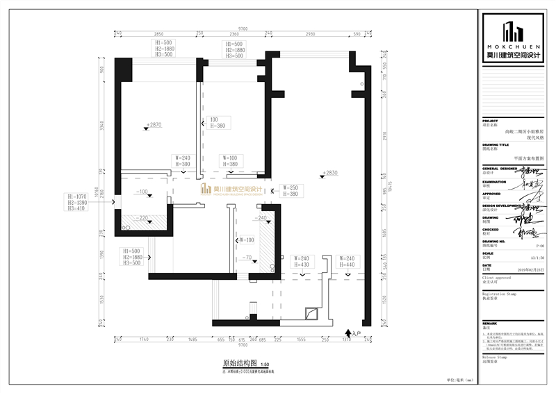
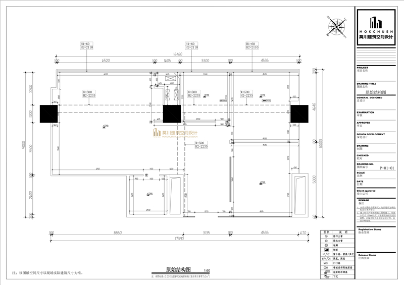
原始戶型圖
原始戶型缺陷及解決方案:
原始的辦公結構不能夠滿足多個辦公室的需求,沒有大的會議室能夠坐下20多人,也沒有很好的企業文化展示,整個辦公空間并不能突出他們的工作是進行科研的一個氛圍。
平面布置方案
空間設計亮點:
1.入戶的LOGO墻設計我們從他們原有的企業文化去延申,結合天花跟墻面的造型進行設計。
2.整個辦公區域的天花也是結合了他們的商標造型去進行的構思和制作。
3.因為原始結構再茶水區跟一個辦公室的天花上有一個非常低的梁。我們就結合著這個梁去做了吊桌跟吊椅。
效果圖及手繪:








完工實景照片:










0755-83333299
莫川裝飾集團總部 :南山區華潤前海大廈A座23層
深圳福田設計院 :福田區卓越世紀中心4號樓506-507室
莫川蛇口設計院 :南山區蛇口招商局廣場24樓EF
深圳龍華設計院 :龍華區安宏基天曜廣場1棟A座12層E
深圳深灣設計院 :南山區后海片區卓越后海中心2509-2510
深圳寶安設計院 :深圳市寶安區前海科興科學園1棟806
莫川香港設計院 :香港中環皇后大道中16-18號新世界大廈
莫川主材定制展廳:南山區高新北二道16號清溢光電大廈4樓
Copyright@ 2015-2017 深圳市莫川建筑空間設計有限公司 版權所有 網站地圖 粵ICP備17082150號 粵公網安備 44030402000770號