設計說明:
本案的空間以線條,石材,木飾面等簡化的材料,通過提煉歷史風情和現代元素來強調場域的文化蘊涵,令豐潤的情感與城市人文精神內里成為空間的主線與靈魂,令生活邂遇美學,藝術融于生活。
設計亮點:
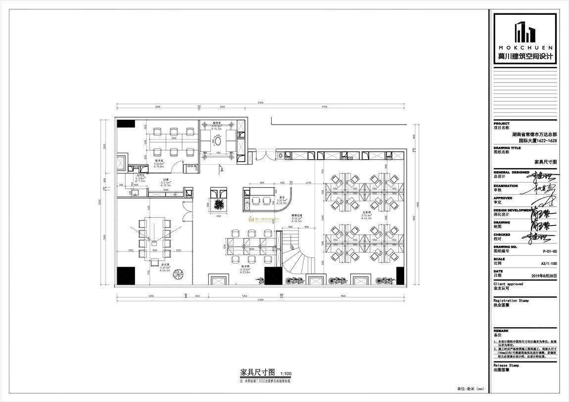
前臺的設計是用大理石跟鋼條處理的,顯得很大氣,空間的延展性更加好,天花的因為梁比較大,所以用弧形做吊頂的延伸,辦公區的背景墻用燈光來提高層高效果,整體空間更加大氣。
項目地址:常德萬達總部大廈
戶型: 商業工裝
裝修風格: 現代簡約
項目面積: 380㎡
設計費:¥228000
施工費:¥684000








0755-83333299
莫川裝飾集團總部 :南山區華潤前海大廈A座23層
深圳福田設計院 :福田區卓越世紀中心4號樓506-507室
莫川蛇口設計院 :南山區蛇口招商局廣場24樓EF
深圳龍華設計院 :龍華區安宏基天曜廣場1棟A座12層E
深圳深灣設計院 :南山區后海片區卓越后海中心2509-2510
深圳寶安設計院 :深圳市寶安區前海科興科學園1棟806
莫川香港設計院 :香港中環皇后大道中16-18號新世界大廈14層
莫川主材定制展廳:南山區高新北二道16號清溢光電大廈4樓
Copyright@ 2015-2017 深圳市莫川建筑空間設計有限公司 版權所有 網站地圖 粵ICP備17082150號 粵公網安備 44030402000770號